Office Campus

back to Architecture

rendering (copyright JWDA) | street view

SketchUp rendering detail

SketchUp rendering detail

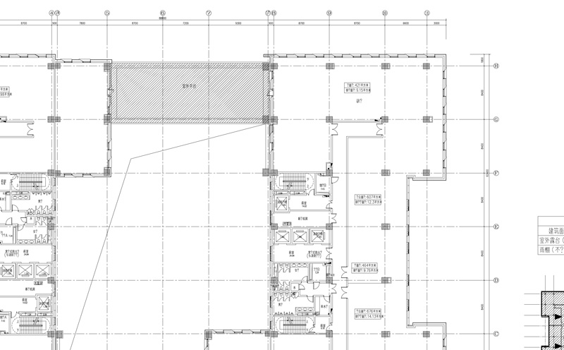
floorplan detail

section detail